Rab Pembangunan Wc Sekolah Xls. Rap pembangunan ruang kelas baru (rkb) merupakan perencanaan anggaran yang akan dikeluarkan untuk proses pembangunan gedung dan lain sebagainya. Dalam membangun atau merubah serta meningkatkan tampilan maupun fasilitas rumah tentunya diperlukan yang namanya rab (rencana anggaran biaya) rumah. Rab pembangunan bendungan irigasi 3.a. Rencana anggaran biaya ( rab ) proyek:
Rab Gedung Sekolah 2 Lantai Excel gawerwild From gawerwild.weebly.com
Rab bangunan terbaru 2020 format excel (sofcopy gratis) rencana anggaran biaya (rab) bangunan tahun 2020 file sofcopy. Proposal permohonan bantuan pembangunan wc sekolah kata pengantar. Ded adalah suatu dokumen yang berupa ; Dan dari sekumpulan rab tersebut anda dapat mendownload filenya dalam bentuk format excel (xls) maupun pdf. F pekerjaan plafond 1 rangka plafond + plafon gypsum 441.58 m2 rp 150,000.00 rp 66 ,237,000.00. Download gambar sekolah madrasah 2 lantai dwg dan file hitungan rab terlengkap.
* file gambar format jpg.
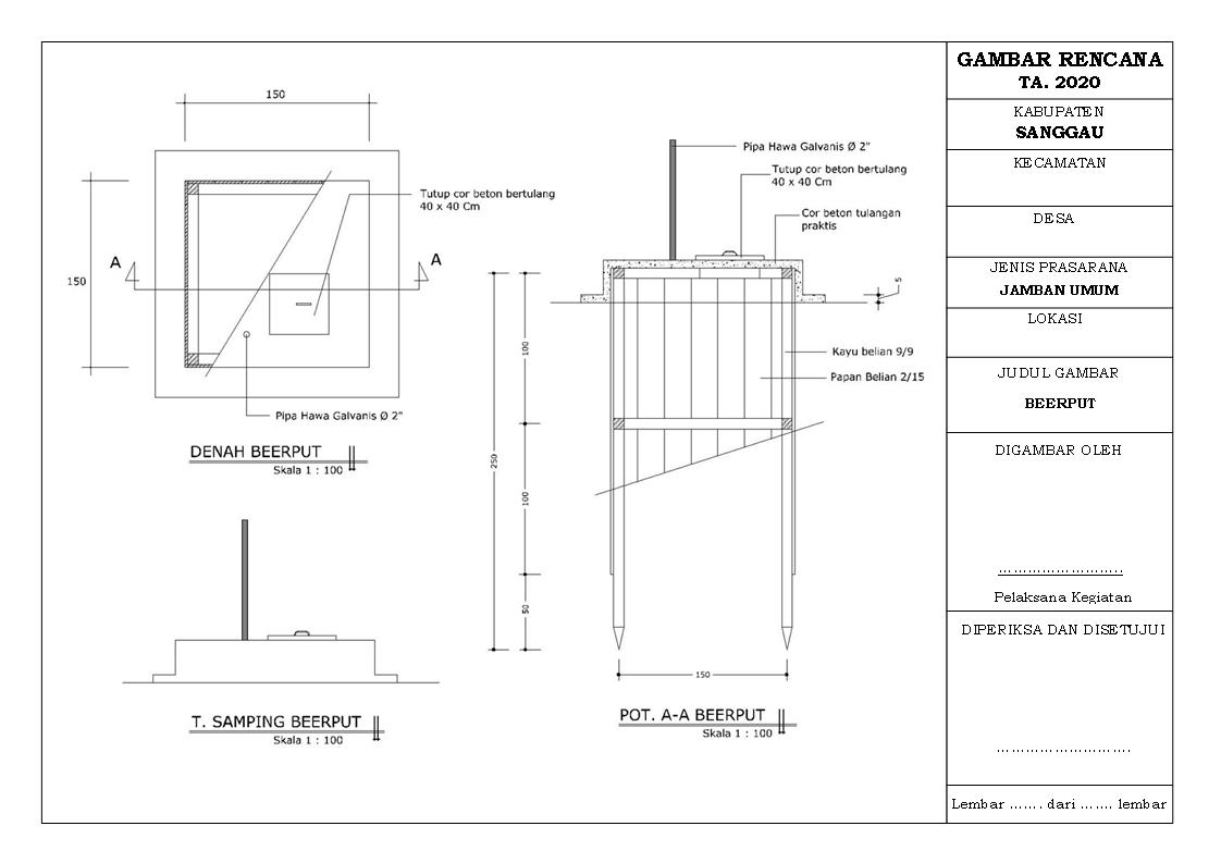
F pekerjaan plafond 1 rangka plafond + plafon gypsum 441.58 m2 rp 150,000.00 rp 66 ,237,000.00. Jika ada kendala, masalah, saran atau kritikan yang membangun jangan sungkan untuk memberitahu kami. Mushola dan sanitsi sekolah pembangunan mck sekolah mck yang akan di bangun sebanyak 12. Proposal permohonan bantuan pembangunan pagar sekolah. Download rap pembangunan ruang kelas baru (rkb) kami madrasah june 21, 2019. 1 komentar untuk desain dan rab pembangunan wc (jamban) umum
Source: bukusekolah.github.io
Contoh proposal renovasi mushola guru ilmu sosial. Proposal permohonan bantuan pembangunan wc sekolah. Dalam membangun sebuah bangunan baik, pekerjaan sipil dan arsitektur dibutuhkan suatu perencanaan yang baik dan matang. Download rap pembangunan ruang kelas baru (rkb) kami madrasah june 21, 2019. 3 m' 37.75 rp 21,125 4.
Source: ruang-sipil.com
Download rab masjid tropis sederhana 12 x 12 meter ide kreasi rumah. Proposal permohonan bantuan pembangunan wc sekolah. Contoh proposal pembangunan gedung baru paud pdf. Biaya (rab) pelaksanaan fisik infrastruktur. 2 kunci tanam km/wc 8.00 bh rp 87,120.00 rp 696,960.00 3 kunci tanam union 2xslag 12.00 bh rp.
Source: ruang-sipil.com
Contoh proposal permohonan dana dan rab rehab gedung sekolah madrasah. Mushola dan sanitsi sekolah pembangunan mck sekolah mck yang akan di bangun sebanyak 12. Dalam rangka meningkatkan kualitas pelayanan pendidikan kepada masyarakat serta sebagai salah satu prasyarat dalam mewujudkan harapan agar setiap lulusan yang dihasilkan semakin meningkat kualitasnya baik dari sisi pengetahuan, kepribadian maupun keterampilan diperlukan sarana. Dalam membangun sebuah bangunan baik, pekerjaan sipil dan arsitektur dibutuhkan suatu perencanaan yang baik dan matang. Desain dan rab pembangunan wc (jamban) umum.
Source: bukusekolah.github.io
Mushola dan sanitsi sekolah pembangunan mck sekolah mck yang akan di bangun sebanyak 12. Rab dan makalah pembangunan gedung ruang kelas baru 3 lantai rkb smk 57. Pipa peresapan pvc dia 3 + ijuk m 2.50 rp 21,125 sub total xvii pekerjaan serba serbi 1. 2 penambahan bangunan baru pada bangunan pplp. Biaya (rab) pelaksanaan fisik infrastruktur.
Source: scribd.com
Salah satunya adalah rab pembangunan dan pengembangan gedung paud atau tk. F pekerjaan plafond 1 rangka plafond + plafon gypsum 441.58 m2 rp 150,000.00 rp 66 ,237,000.00. 2 kunci tanam km/wc 8.00 bh rp 87,120.00 rp 696,960.00 3 kunci tanam union 2xslag 12.00 bh rp. Total nilai rekap rab : Rab pembangunan bendungan irigasi 3.a.
Source: wiryocaram.blogspot.com
File terdiri dari file gambar format jpg dan file rab detail format ms. Harga satuan pekerjaan tni al wilayah jakarta. Sanitasi yang baik akan menjauhkan segala bentuk virus dan bakteri penyebab segala penyakit. Rab bangunan terbaru 2020 format excel (sofcopy gratis) rencana anggaran biaya (rab) bangunan tahun 2020 file sofcopy. Tidak halnya dengan pembuatan taman landscape.
Source: gawerwild.weebly.com
Download gambar sekolah madrasah 2 lantai dwg dan file hitungan rab terlengkap. 2 penambahan bangunan baru pada bangunan pplp. Oleh karena itu jika masih dianggap belum seimbang jumlahnya maka harus membangun kembali toilet atau jamban di sekolah. Tidak halnya dengan pembuatan taman landscape. 2 kunci tanam km/wc 8.00 bh rp 87,120.00 rp 696,960.00 3 kunci tanam union 2xslag 12.00 bh rp.
Source: recipe.atirta13.com
Bak kontrol 30 x 30 ls 1.00 rp 62,500 sub total xvi pekerjaan septictank 1. F pekerjaan plafond 1 rangka plafond + plafon gypsum 441.58 m2 rp 150,000.00 rp 66 ,237,000.00. Bak kontrol 30 x 30 ls 1.00 rp 62,500 sub total xvi pekerjaan septictank 1. Dan dari sekumpulan rab tersebut anda dapat mendownload filenya dalam bentuk format excel (xls) maupun pdf. Tidak halnya dengan pembuatan taman landscape.
Source: vdocument.in
Kumpulan lengkap download contoh proposal pembangunan mushola sekolah. Agar setiap lulusan yang dihasilkan semakin meningkat. Contoh proposal bantuan dana pembangunan gedung sekolah. Harga satuan pekerjaan tni al wilayah jakarta. Kumpulan lengkap download contoh proposal pembangunan mushola sekolah.
Source: foodkelasbelajar.blogspot.com
Proposal permohonan bantuan unduh, download pembangunan ruang kelas baru (rkb) dana alokasi khusus (dak) fisik bidang pendidikan tahun anggaran 2019 Sanitasi juga harus didukung oleh sarana dan prasarana yang baik yang mampu. Proposal permohonan bantuan pembangunan pagar sekolah. Dalam rangka meningkatkan kualitas pelayanan pendidikan kepada. 19610313 199003 1 005 plh.
Source: berbagairuang.blogspot.com
Download rab masjid tropis sederhana 12 x 12 meter ide kreasi rumah. Proposal permohonan bantuan pembangunan wc sekolah kata pengantar. Contoh proposal pembangunan wc atau mck sekolah proposal wc sekolah. Dan dari sekumpulan rab tersebut anda dapat mendownload filenya dalam bentuk format excel (xls) maupun pdf. Contoh proposal bantuan dana pembangunan gedung sekolah.
Source: scribd.com
Jika ada kendala, saran atau kritikan yang membangun jangan sungkan untuk memberitahu kami. Proposal permohonan bantuan pembangunan wc sekolah kata pengantar. Biaya (rab) pelaksanaan fisik infrastruktur. 2 penambahan bangunan baru pada bangunan pplp. Rab pembangunan gedung sekolah taman kanak kanak (tk) + meubilair volume 8 x 12 m 3.
Source: musholaalfikhoir.blogspot.com
Contoh proposal permohonan dana dan rab rehab gedung sekolah madrasah. Rab pembangunan gedung sekolah taman kanak kanak (tk) + meubilair volume 8 x 12 m 3. Salah satunya adalah rab pembangunan dan pengembangan gedung paud atau tk. (xls) rab kegiatan rab pembangunan dan pengembangan paud diatas. Rab pembangunan bendungan irigasi 3.a.
Source: scribd.com
Pipa peresapan pvc dia 3 + ijuk m 2.50 rp 21,125 sub total xvii pekerjaan serba serbi 1. Download contoh rab pembuatan taman excel pdf dan xls. Bak kontrol 30 x 30 ls 1.00 rp 62,500 sub total xvi pekerjaan septictank 1. Total nilai rekap rab : Rencana anggaran dan biaya (rab) redesain kantor bupati kabupaten pati tahun 2011 m.
Source: seputarbentuk.blogspot.com
Tentang download contoh rab dalam pembuatan taman format excel pdf dan xls. Mushola dan sanitsi sekolah pembangunan mck sekolah mck yang akan di bangun sebanyak 12. Rap ini bersifat wajib dilampirkan disetiap pengajuan proposal pembangunan oleh satuan pendidikan. Dalam rangka meningkatkan kualitas pelayanan pendidikan kepada. 2 penambahan bangunan baru pada bangunan pplp.
Source: jejakbelajar.github.io
Rap pembangunan ruang kelas baru (rkb) merupakan perencanaan anggaran yang akan dikeluarkan untuk proses pembangunan gedung dan lain sebagainya. Contoh proposal pembangunan wc atau mck sekolah proposal wc sekolah. Ded adalah suatu dokumen yang berupa ; 3 m' 37.75 rp 21,125 4. Yang meliputi perhitungan volume pekerjaan, analisa harga satuan pekerjaan (ahsp) dan gambar kerja (bestek)
Source: academia.edu
Dalam rangka meningkatkan kualitas pelayanan pendidikan kepada masyarakat serta sebagai salah satu prasyarat dalam mewujudkan harapan agar setiap lulusan yang dihasilkan semakin meningkat kualitasnya baik dari sisi pengetahuan, kepribadian maupun keterampilan diperlukan sarana. Rab bangunan terbaru 2020 format excel (sofcopy gratis) rencana anggaran biaya (rab) bangunan tahun 2020 file sofcopy. Tidak halnya dengan pembuatan taman landscape. Perlu anda ketahui setiap kita akan melakukan pekerjaan yang berkaitan dengan sebuah proyek terlebih dahulu sudah ada planning desain. Pipa peresapan pvc dia 3 + ijuk m 2.50 rp 21,125 sub total xvii pekerjaan serba serbi 1.
Source: superlasopa634.weebly.com
Rab pembangunan jalan perkerasan rabat beton + saluran drainase + plat duikker 6. Rab pembangunan gedung sekolah taman kanak kanak (tk) + meubilair volume 8 x 12 m 3. Proposal permohonan bantuan pembangunan wc sekolah. F pekerjaan plafond 1 rangka plafond + plafon gypsum 441.58 m2 rp 150,000.00 rp 66 ,237,000.00. Rab dan makalah pembangunan gedung ruang kelas baru 3 lantai rkb smk 57.
This site is an open community for users to do submittion their favorite wallpapers on the internet, all images or pictures in this website are for personal wallpaper use only, it is stricly prohibited to use this wallpaper for commercial purposes, if you are the author and find this image is shared without your permission, please kindly raise a DMCA report to Us.
If you find this site adventageous, please support us by sharing this posts to your preference social media accounts like Facebook, Instagram and so on or you can also bookmark this blog page with the title rab pembangunan wc sekolah xls by using Ctrl + D for devices a laptop with a Windows operating system or Command + D for laptops with an Apple operating system. If you use a smartphone, you can also use the drawer menu of the browser you are using. Whether it’s a Windows, Mac, iOS or Android operating system, you will still be able to bookmark this website.



